Lučko, 3-soban stan 69,78m2 sa spremištem i GPM

Osnovne informacije

  • Šifra objektairo-388
  • Prodajna cijena226 785 € (1 708 712 kn)
  • LokacijaLučko, Novi Zagreb - Zapad (10000)
  • Kvadratura69,78 m2
  • Tip stana3S
  • Energetski razredA+
  • Broj soba3
  • Broj spavaćih soba2
  • Broj kupaonica1
  • Kat opisnoVisoko prizemlje
  • Broj etažaJednoetažni
  • Vrsta zgradeStambena
  • Godina izgradnje2026
  • Br. parkirnih mjesta1

Stan 3S za prodaju, Novi Zagreb - Zapad, 226 785 €

KUPAC NE PLAĆA AGENCIJSKU PROVIZIJU NITI POREZ NA PROMET NEKRETNINA!

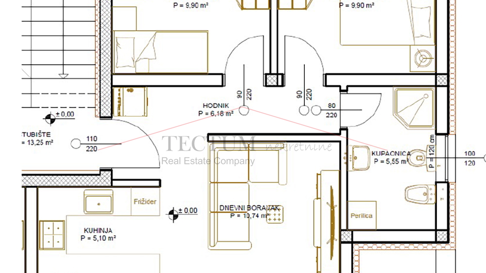
Prodaje se moderan 3-sobni stan u Lučkom, ukupne obračunske površine 69,78 m2 (stan s balkonom 62,14 m2 + garažno parkirno mjesto i spremište).

Stan je orijentiran na SI–JI, što osigurava obilje prirodnog svjetla i ugodan boravak tijekom cijelog dana.

Kvalitetna novogradnja i vrhunska izvedba

Zgrada je građena prema visokim standardima, s armiranobetonskom konstrukcijom koja jamči dugotrajnost, stabilnost i sigurnost. Posebna pažnja posvećena je toplinskoj i zvučnoj izolaciji te energetskoj učinkovitosti.

- ETICS fasada s 15 cm toplinske izolacije (stiropor + kamena vuna)
- Ravni krov s 20 cm XPS izolacije i TPO hidroizolacijom
- PVC stolarija s troslojnim staklom i ALU roletama
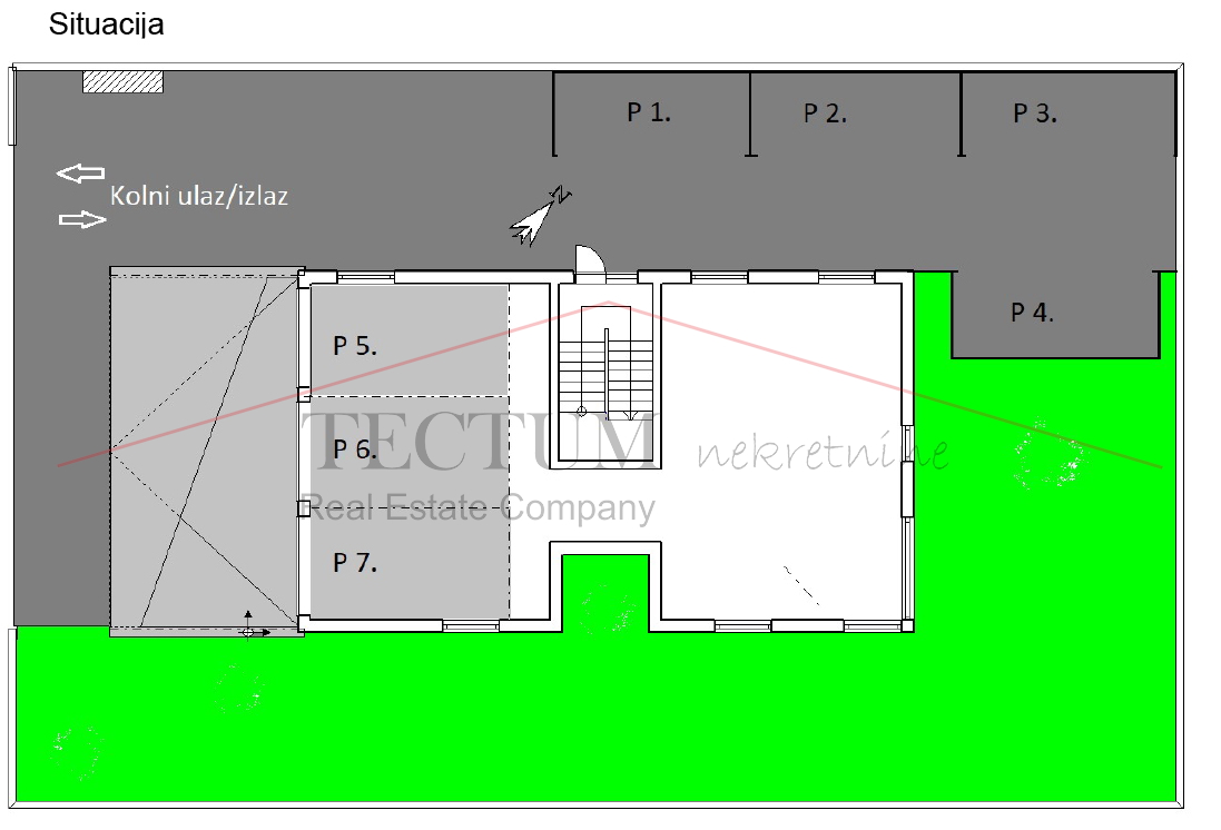
- Uređen okoliš i asfaltirana parkirna mjesta

Unutarnje uređenje i oprema

Stanovi su projektirani za maksimalnu udobnost i funkcionalnost:

- Visina stropova: 280–285 cm
- Protuprovalna i protupožarna ulazna vrata
- Sobna vrata modernog dizajna (bijela ili drveni dekor)
- Parket u sobama, keramika u kupaonici i na balkonu
- Kupaonica opremljena (ROCA sanitarije, HANSGrohe armature, tuš kabina)
- Priprema za perilicu rublja

Grijanje, hlađenje i instalacije

- Dizalica topline za podno grijanje i toplu vodu
- Inverterski klima uređaji za hlađenje
- Vlastiti vodomjer za svaki stan
- Video portafon sa električnom bravom ulaznih vrata zgrade i elektronskim privjescima za svaki stan
- Priprema za optički internet

Dodatne prednosti

- Garažno parkirno mjesto
- Spremište

Za više informacija i dogovor oko razgledavanja, slobodno se javite.

KUPAC NE PLAĆA AGENCIJSKU PROVIZIJU NITI POREZ NA PROMET NEKRETNINA!

Ostale informacije na upit.
mob: 095-88-22-552
mail: prodaja@tectum-nekretnine.hr
www.tectum-nekretnine.hr

Razna svojstva

  • Balkon
  • PVC stolarija

Grijanje

  • Podno grijanje

Instalacije

  • Struja
  • Voda
  • Kanalizacija

Orijentacija

  • Sjever
  • Istok
  • Jug
  • Istok

Prikaz nekretnine na karti

Kontaktiraj agenta

Srećko Kunstić

Srećko Kunstić