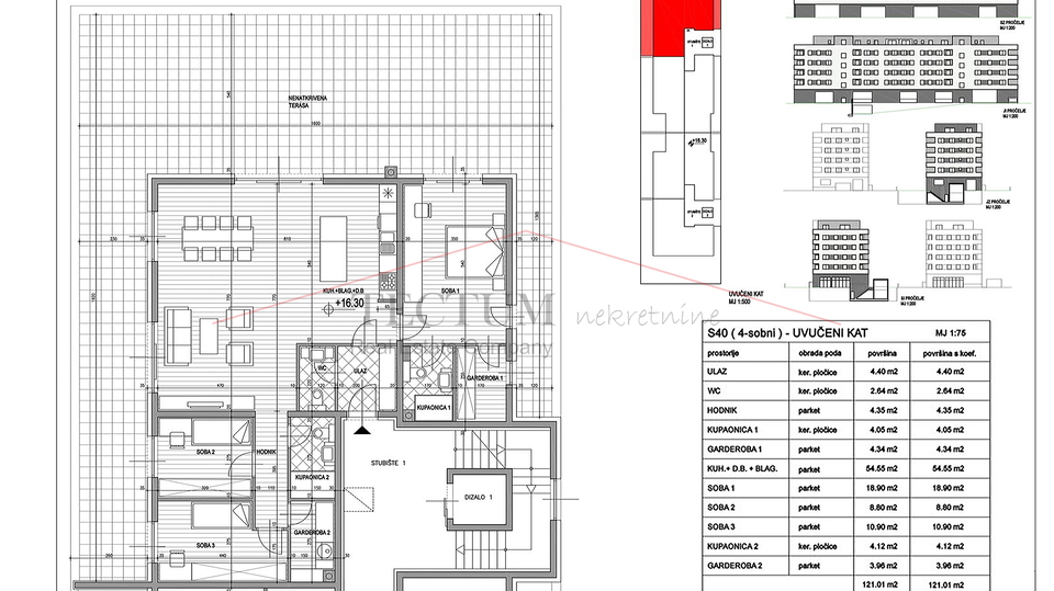
Četverosoban stan 153,02m2, 4 kat, 2990 EUR/m2

Osnovne informacije

  • Šifra objektairo-383
  • Prodajna cijena457 530 € (3 447 260 kn)
  • LokacijaVelika Gorica, Kurilovec (10410)
  • Kvadratura153,02 m2
  • Tip stana4S
  • Energetski razredA
  • Broj soba4
  • Broj spavaćih soba3
  • Broj kupaonica2
  • Kat2
  • Broj etažaJednoetažni
  • Ukupno katova5
  • Vrsta zgradeStambena
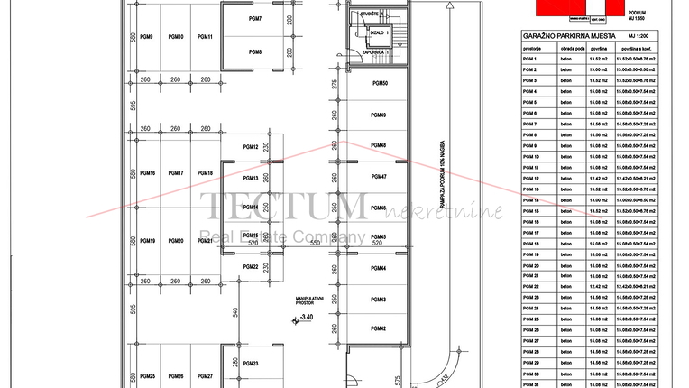
  • Br. parkirnih mjesta2

Stan 4S za prodaju, Velika Gorica, 457 530 €

KUPAC NE PLAĆA AGENCIJSKU PROVIZIJU NITI POREZ NA PROMET NEKRETNINA!

Prodaje se četverosoban stan površine 153,02m2 u mirnom naselju Kurilovec u Velikoj Gorici.

Stan S40-Z4 sastoji se od:

- ulaznog hodnika,
- dnevnog boravka s kuhinjom i blagovaonicom,
- tri spavaće sobe,
- dvije garderobe,
- dvije kupaonice,
- wc-a,
- nenatkrivena terasa

Stan je zapadne, istočne i sjeverne orijentacije, što osigurava obilje prirodnog svjetla tijekom dana.
Grijanje je plinsko podno, ugrađena je PVC stolarija, a ulazna vrata su protuprovalna i protupožarna. Zgrada ima fasadnu izolaciju debljine 15 cm.

Uz stan treba kupiti dva garažna parkirna mjesta i spremište uz nadoplatu.
Postoji mogućnost biranja pločica i parketa, što omogućuje prilagodbu interijera vlastitim željama.

KUPAC NE PLAĆA AGENCIJSKU PROVIZIJU NITI POREZ NA PROMET NEKRETNINA!



Ostale informacije na upit.
mob: 095-88-22-552
mail: prodaja@tectum-nekretnine.hr
www.tectum-nekretnine.hr

Razna svojstva

  • Lođa
  • Ostava (izba)
  • Protuprovalna vrata
  • Lift
  • PVC stolarija

Grijanje

  • Plin
  • Podno grijanje

Instalacije

  • Struja
  • Voda
  • Kanalizacija
  • Plin
  • DSL/Internet

Stanje zgrade

  • Novogradnja

Orijentacija

  • Zapad
  • Sjever
  • Istok

Prikaz nekretnine na karti

Kontaktiraj agenta

Srećko Kunstić

Srećko Kunstić