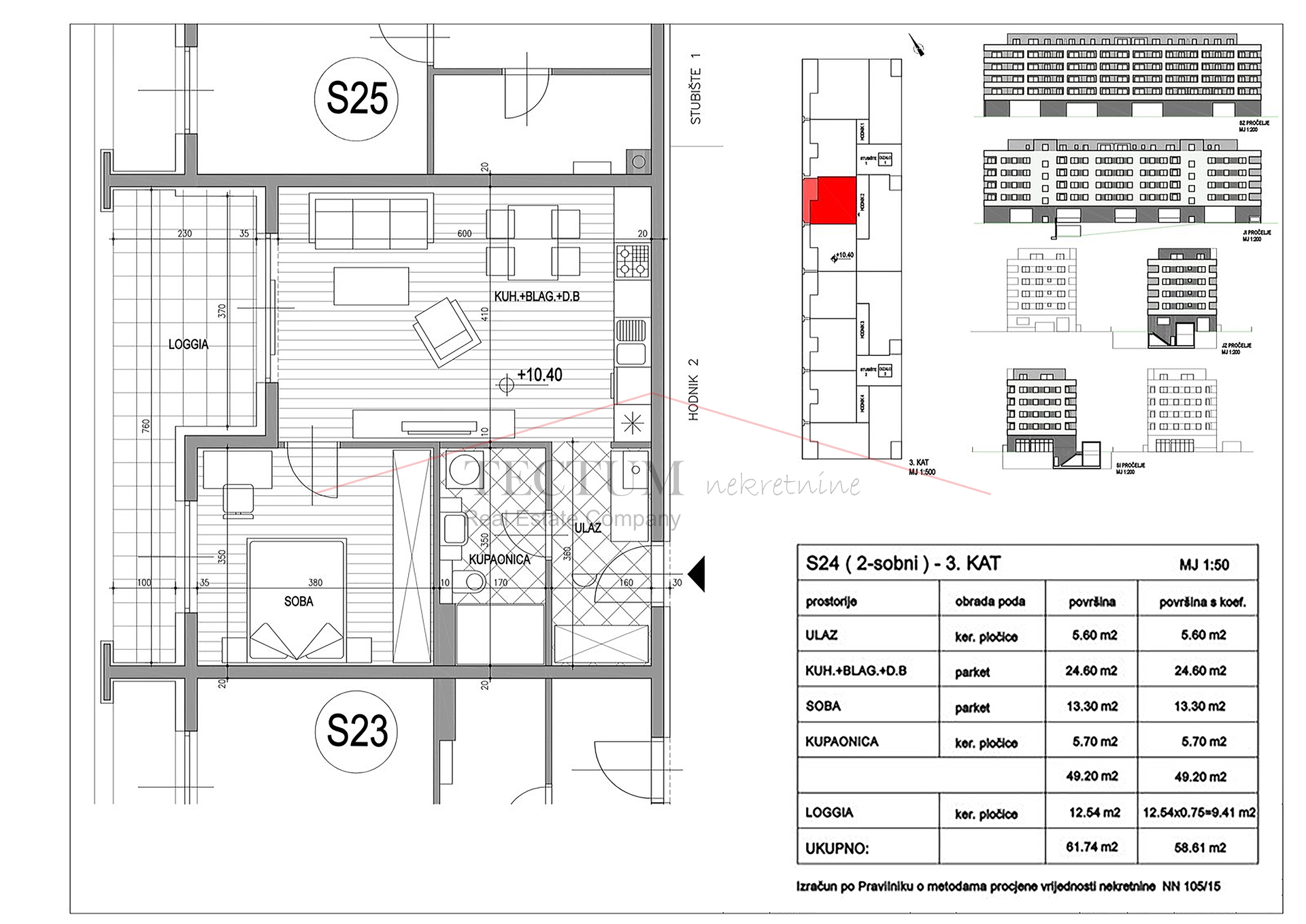
Dvooban stan 58,61m2, 3 kat, 2990 EUR/m2

Osnovne informacije

  • Šifra objektairo-382
  • Prodajna cijena175 244 € (1 320 376 kn)
  • LokacijaVelika Gorica, Kurilovec (10410)
  • Kvadratura58,61 m2
  • Tip stana2S
  • Energetski razredA
  • Broj soba2
  • Broj spavaćih soba1
  • Broj kupaonica1
  • Kat3
  • Broj etažaJednoetažni
  • Ukupno katova5
  • Vrsta zgradeStambena
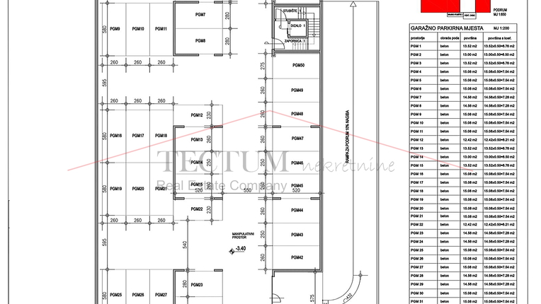
  • Br. parkirnih mjesta2

Stan 2S za prodaju, Velika Gorica, 175 244 €

KUPAC NE PLAĆA AGENCIJSKU PROVIZIJU NITI POREZ NA PROMET NEKRETNINA!

Prodaje se dvosoban stan površine 58,61m2 u mirnom naselju Kurilovec u Velikoj Gorici.

Stan S24-Z4 sastoji se od:

- ulaznog hodnika,
- dnevnog boravka s kuhinjom i blagovaonicom,
- spavaće sobe,
- kupaonice,
- lođe

Stan je zapadne orijentacije, što osigurava obilje prirodnog svjetla tijekom dana.
Grijanje je plinsko podno, ugrađena je PVC stolarija, a ulazna vrata su protuprovalna i protupožarna. Zgrada ima fasadnu izolaciju debljine 15 cm.

Uz stan treba kupiti dva garažna parkirna mjesta i spremište uz nadoplatu.
Postoji mogućnost biranja pločica i parketa, što omogućuje prilagodbu interijera vlastitim željama.

KUPAC NE PLAĆA AGENCIJSKU PROVIZIJU NITI POREZ NA PROMET NEKRETNINA!



Ostale informacije na upit.
mob: 095-88-22-552
mail: prodaja@tectum-nekretnine.hr
www.tectum-nekretnine.hr

Razna svojstva

  • Lođa
  • Ostava (izba)
  • Protuprovalna vrata
  • Lift
  • PVC stolarija

Grijanje

  • Plin
  • Podno grijanje

Instalacije

  • Struja
  • Voda
  • Kanalizacija
  • Plin
  • DSL/Internet

Stanje zgrade

  • Novogradnja

Orijentacija

  • Zapad

Prikaz nekretnine na karti

Kontaktiraj agenta

Srećko Kunstić

Srećko Kunstić