Stan 4S za prodaju, Velika Gorica, 222 516 €
KUPAC NE PLAĆA AGENCIJSKU PROVIZIJU NITI POREZ NA PROMET NEKRETNINA!
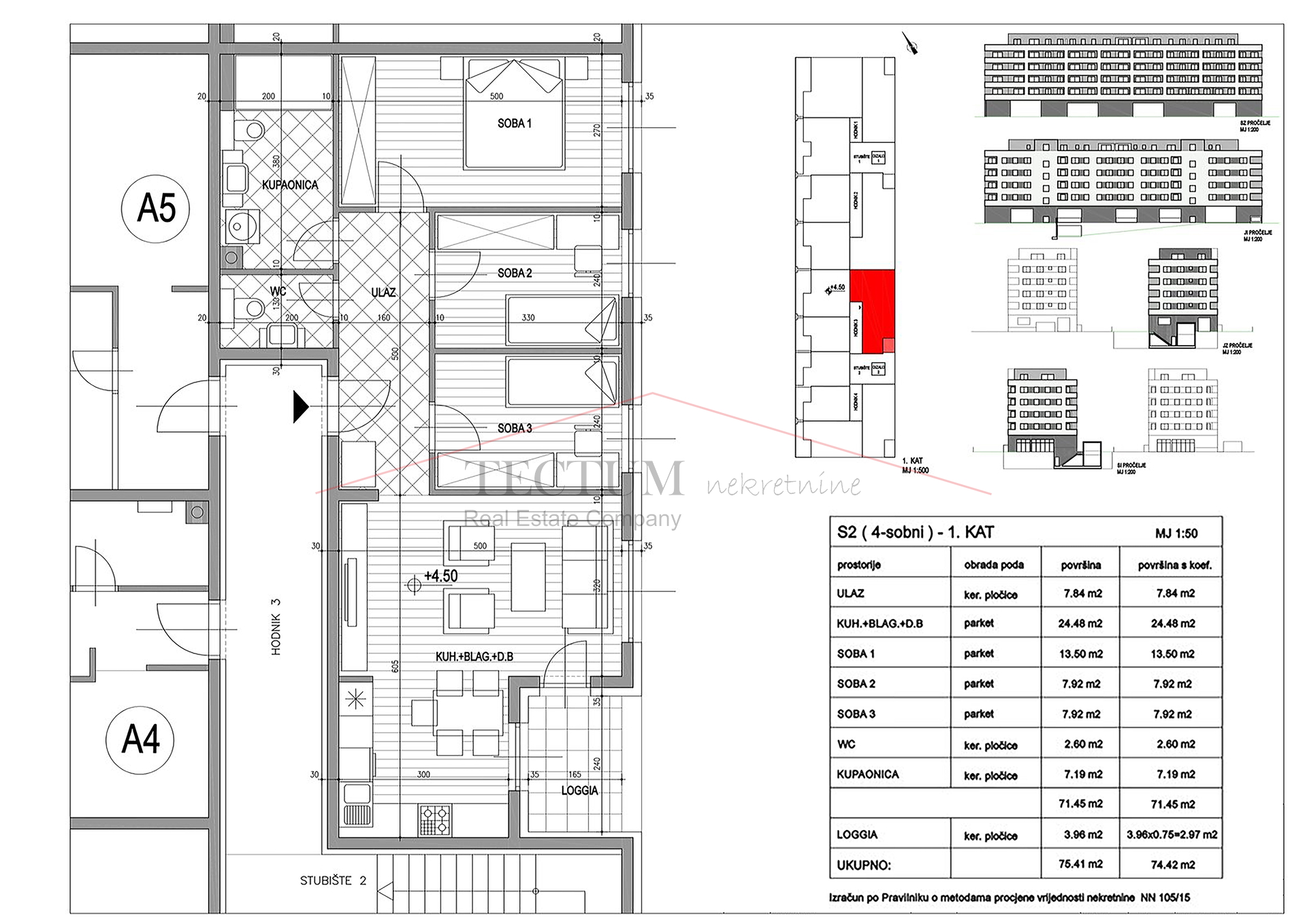
Prodaje se četverosoban stan površine 74,42m2 u mirnom naselju Kurilovec u Velikoj Gorici.
Stan S2-Z4 sastoji se od:
	- ulaznog hodnika,
	- dnevnog boravka s kuhinjom i blagovaonicom,
	- tri spavaće sobe,
	- kupaonice,
	- lođe
Stan je istočne orijentacije, što osigurava obilje prirodnog svjetla tijekom dana.
Grijanje je plinsko podno, ugrađena je PVC stolarija, a ulazna vrata su protuprovalna i protupožarna. Zgrada ima fasadnu izolaciju debljine 15 cm.
Uz stan treba kupiti dva garažna parkirna mjesta i spremište uz nadoplatu.
Postoji mogućnost biranja pločica i parketa, što omogućuje prilagodbu interijera vlastitim željama.
KUPAC NE PLAĆA AGENCIJSKU PROVIZIJU NITI POREZ NA PROMET NEKRETNINA!
Ostale informacije na upit.
mob: 095-88-22-552
mail: prodaja@tectum-nekretnine.hr
www.tectum-nekretnine.hr